Call Us Today: 847-250-0483

Senior living as independent as
you are

A retirement lifestyle just blocks away from beautiful Lake Michigan

Senior living
as independent as you are.

The perfect retirement lifestyle thrives in the heart of Evanston.

Everything you hoped for, inside and out

Choosing The Merion means choosing an ideal location to continue living your independent lifestyle. With walkability to numerous shopping and dining venues, our vibrant urban neighborhood offers countless exciting and enriching opportunities. This convenience, in conjunction with the flexibility and top-notch services and amenities you’ll find in our community, makes the perfect retirement lifestyle.

Reside just steps away from restaurants, shopping, cultural sites, and Northwestern University

Enjoy the ease and predictability of an all-inclusive monthly rental fee 


Be part of a community where everyone knows your name

Take advantage of lifelong learning opportunities


Dine in style with a monthly dining credit of $750

Live well with MerionCares, our personalized health services program

LEARN MORE.

Are you ready to take the next step in maintenance-free and joy-filled independent living?

Complete this contact form 
to get started.

Bennie T. downsized to The Merion
and doesn’t miss a thing

“I spend my free time in the community, going to activities and enjoying my space. The Merion is great!”

Stylish Independent Living Residences

Our flexible rental agreements eliminate large upfront fees, providing financial control as you embark on the next phase of your life.

We have a variety of floor plans available, many newly remodeled, adding a touch of modern luxury to your independent living experience.


Key Features:

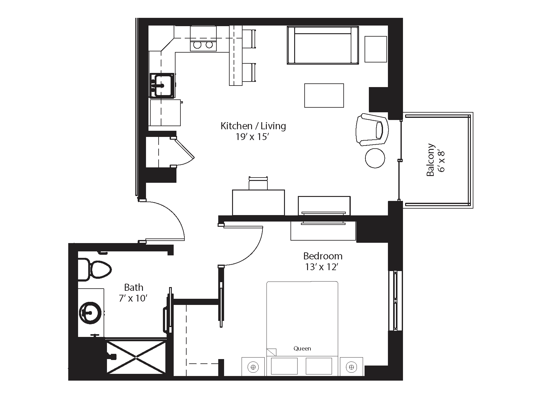
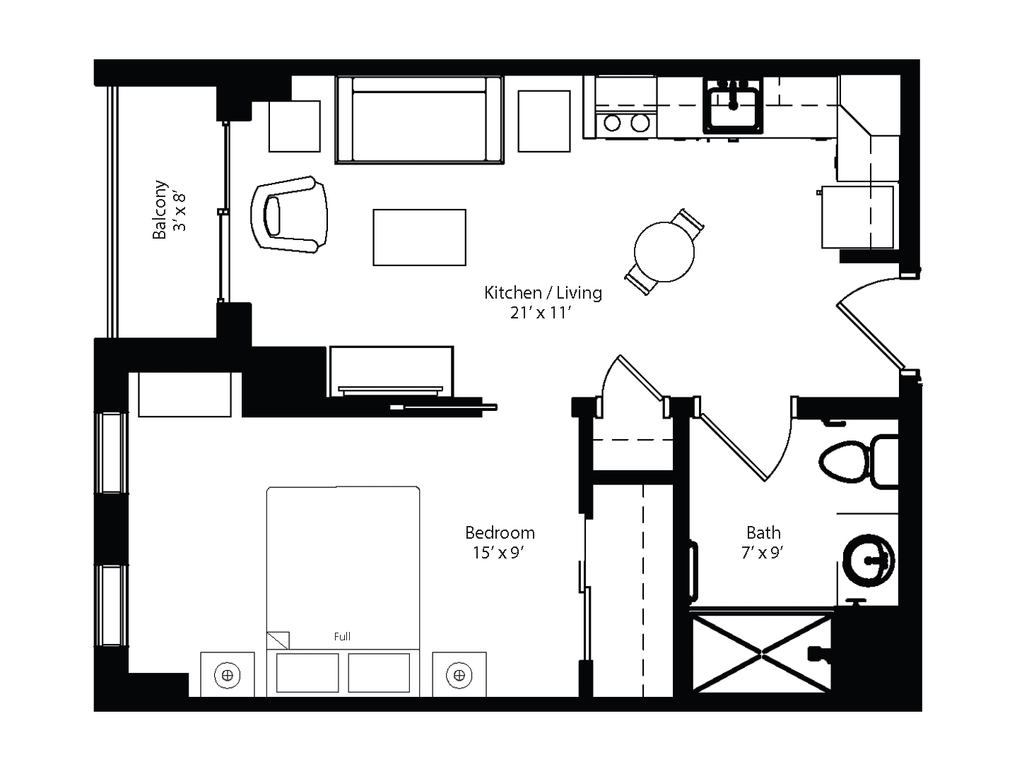
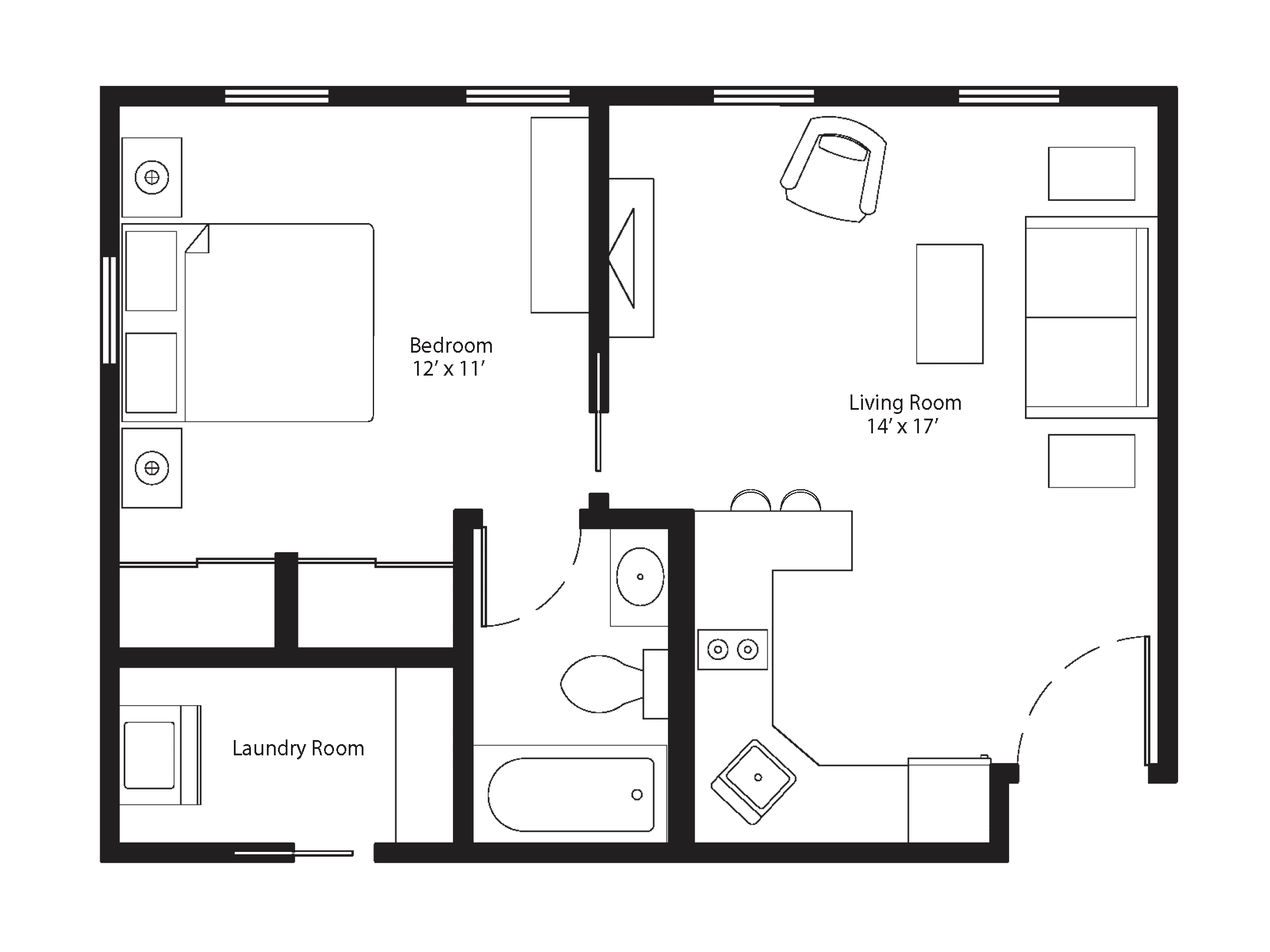
  • Studio, one-bedroom, and two-bedroom floor plans, some featuring private balconies
  • Preference of unfurnished and partially or fully furnished apartments
  • Luxury amenities, including a flat-screen TV with satellite cable, ample closet space, and natural oak hardwood floors
  • Modern kitchen equipped with stainless steel appliances and granite countertops

Featured Floor Plans

The more you know,
the more you’ll love it

For an in-depth look at the residential experience,
download our free lifestyle guide.

Take a video tour

Sit back, relax, and let us guide you through The Merion experience.

See The Merion and all we offer.

Call to schedule a tour

Discover The Merion

1611 Chicago Avenue | Evanston, IL 60201